PORTFOLIO
































Design
Design | Artopex
CAD Layout technician. Development of plans and details according to clients layout.
Drawing technician. Development of plans and details for installation of glass partitions
Retail
Sales | Épicerie des Canotiers
Co-owner, General management, inventory control and inventory, accounting, marketing, cashier, cook, customer service and much more.






























Design
Design | Freelancer.com
Architect and design jobs through the web Freelancer.com




















Retail
Retail | Wüto, premium wools and accessories
Shop Owner. Sale of yarn and knitting items in Antigua, Guatemala.




























Architecture
Architecture | LAKP
Development of architectural projects of different scales.
My duties were mainly involved in every stage of the project: design, develop plans and details for construction, 3d models and images for presentation.




































Architecture
Architecture | Jorge Ramirez
Development of architectural projects of different scales.
My duties were mainly involved in develop plans and details for construction, 3d models and images for presentation.


























































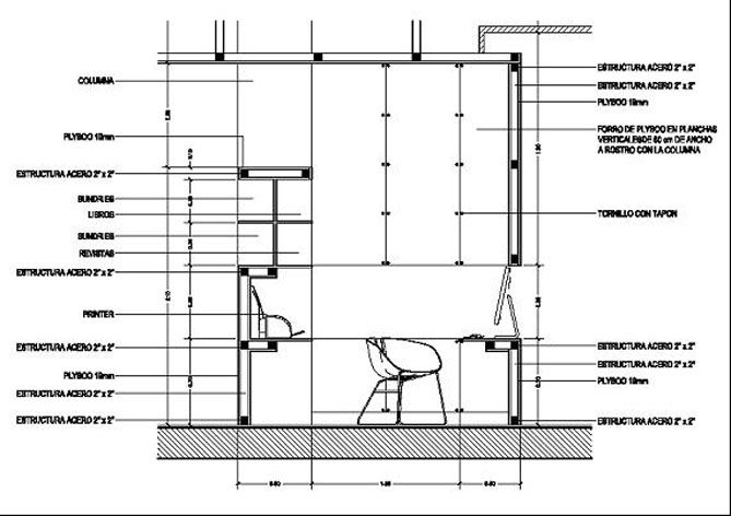
Architecture
Architecture | Mathias Klots & Asoc.
Development of architectural projects of different scales.
My duties were mainly involved in every stage of the project: design, develop plans and details for construction, construction follow up, 3d models and images for presentation.






















Architecture
Architecture | David garda
Development of architectural projects of different scales.
My duties were mainly involved in every stage of the project: design, develop plans and details for construction, construction follow up, 3d models and images for presentation.
David Garda, Taller de Arquitectura 05/12/2015
'' Maria Jose' Celis is a highly motivated young architect who's always in search for professional and personal growth. She collaborated with our firm, DGTA -our building workshop in Guatemala- for several months and her work was of fine quality. She is a talented, creative architect quite capable in terms of team work and on time delivery. I wholeheartedly recommend her to your attention ''


















Architecture
Architecture | Studio Domus
Just a sample of my work. To see more or discuss possible work >>




